Кабелийн тавиурын автомат боодлын машин
1. Үйлдвэрлэлийн үр ашгийг дээшлүүлэх: Автомат боодлын машин нь автоматжуулсан үйлдлийн системийг ашигладаг бөгөөд энэ нь боодлын ажлыг тасралтгүй хийж, үйлдвэрлэлийн хурдыг ихээхэн нэмэгдүүлдэг. Гарын авлагын савлагаатай харьцуулахад энэ нь илүү үр дүнтэй бөгөөд үйлдвэрлэлийн мөчлөгийг богиносгоход тусалдаг.
2. Хөдөлмөрийн зардлыг хэмнэх: Автомат боодлын машин нь сав баглаа боодлын ажилд олон гар ажилчдыг орлож, компанийн хүний нөөцийн хөрөнгө оруулалтыг бууруулж, хөдөлмөрийн зардлыг бууруулна.
Үндсэн бүрэлдэхүүн хэсгүүд ба параметрүүд
Нэр Тодорхойлолт
Хүрээний үндсэн хэсэг нь 80х80х3 хэмжээтэй квадрат хоолойноос гагнаж байна
Туузан дамжуулагч нь гулсахаас хамгаалсан өтгөрүүлсэн туузан дамжуургаар хийгдсэн байдаг
Эргэлтийн хөшүүрэг Q235 хавтанг лазераар зүсэж, боловсруулдаг
Материалын эргэлтийн өргөгч нь хийн өргөлтөөр ажилладаг
Хөтөч босоо ам нь бүгд 45 # гангаар хийгдсэн бөгөөд гадаргуу нь Luo-ээр бүрсэн байна.
Гулсуурууд нь нарийн дөрвөлжин төмөр замыг ашигладаг
2525 бөмбөлөг боолтыг шураг
Өргөх серво мотор
Халуун хайлмал боодол
Нэр Тодорхойлолт
Цахилгаан хангамж, эрчим хүч 220v/50Hz 500w
Савлах хурд ≤1.5 секунд/ эгнээ
Холбогдох оосрын зузаан (0.45-1.0) мм* өргөн (9-15) мм
Онцлогууд: соронзон хальсыг хэзээ ч алдахгүй, цахим илрүүлэлт
CNC дэлгэц, энгийн ажиллагаа
Дагалдах хэрэгслийн стандартыг Германы Милан хотод үндэслэсэн
Татах хэсэг
Нэр Тодорхойлолт
Хүрээний үндсэн хэсэг нь 80х80х3 хэмжээтэй квадрат хоолойноос гагнаж байна
Редуктор, тавиур болон бүлүүрийн дамжуулалт бүхий хөдөлгөөнт цахилгаан серво мотор
Слайд нь 45# гангаар хийгдсэн, өндөр давтамжийн дулааны боловсруулалт, гадаргуу дээр Luo бүрсэн. Энэ нь өтгөрүүлсэн хөнгөн цагаан суудалтай бөгөөд өргөтгөсөн гулсагчаар тоноглогдсон.
Clamping нь эргэлтээс сэргийлэхийн тулд TN загварын цилиндрийг ашигладаг
Тавиурлах хэсэг
Нэр Тодорхойлолт
Хүрээний үндсэн хэсэг нь 80х80х3 хэмжээтэй квадрат хоолойноос гагнаж байна
Роботын үндсэн хэсэг нь өтгөрүүлсэн хүнд даацын хөнгөн цагаан профилиар хийгдсэн.
Манипулятор нь барьж авах бат бөх, хөдөлгөөний тогтвортой байдлыг хангахын тулд эхлээд салаа, дараа нь дарах хэлбэрийг ашигладаг.
Тавиурын хөдөлж буй бул нь 45 # гангаар хийгдсэн, гадаргууг бүрсэн, φ45 мм цул
Эргэдэг хэмжигч: Овоол бүрийн дөрвөлжин байдлыг хангах, хөдөлж байх үед хөлийг маажихгүйн тулд дугуй хэмжигчийг сонгож, дотор нь эргэдэг холхивчоор тоноглодог.
⑤Цахилгааны шүүгээ
Нэр Тоо хэмжээ Брэнд загвар
plc 1 дэлгэцийн удирдлага
Plc өргөтгөл 2 дэлгэцийн удирдлага
1 мэдрэгчтэй дэлгэцийн удирдлага
Ойролцоох унтраалга нь хэд хэдэн NPN, 24VDC, ихэвчлэн нээлттэй байдаг
Фотоэлектрик унтраалга хэд хэдэн NPN, 24VDC, ихэвчлэн нээлттэй байдаг
Бага хүчдэлийн цахилгаан 1 Чинт
Servo мотор 4 Хэчуан 0.75кВ
Ихэнх тоног төхөөрөмжийн моторууд нь төхөөрөмжийг илүү хурдан, уян хатан болгохын тулд servo мотор ашигладаг.
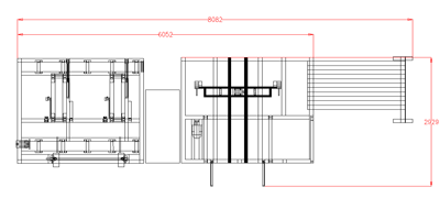
Тоног төхөөрөмжийн урт нь 6 метр, савлах хугацаа 2 метр, нийт урт нь 8 метр орчим байна.
Өргөн нь ойролцоогоор 2.9 метр


